This week Royal Borough of Greewnich Council gave planning permission for the house at 367 Rochester Way in Eltham to be converted into a 6 bedroom development for individuals to share. This means a home which could house a family is being lost and normally comes with a range of issues linked to parking, rubbish not being collected (as recycling is hard to organise in shared housing like this) and a greater turnover of residents which makes it harder to create a strong local community.
Last year the Council rejected an application for a 7 bedroom development at 367 Rochester Way but this year approved the 6 bedroom plan with a few conditions which the owner needs to meet.
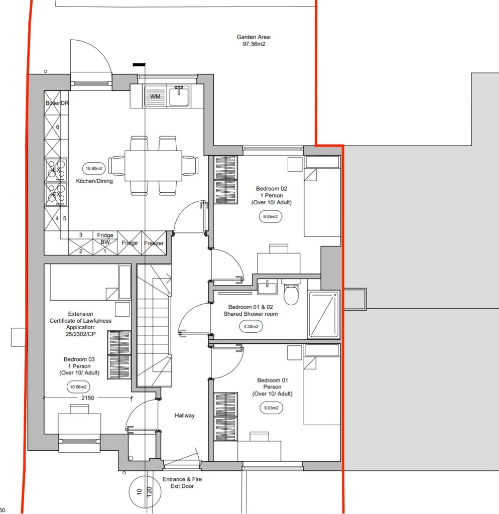
A few key drawings linked to the development are shown below:



In this case the planning application was decided by Council Officers without any public contribution despite objections being received from 7 local residents. Neither of the existing Labour Councillors responded to the consultation which is a shame as they could have asked for a public meeting on this development.
The decision to grant planning permission was hard for Council Officers to avoid as Greenwich Council have failed to update local restrictions which would prevent the spread of Houses of Multiple Occupation (HMOs) across Eltham and the Borough more widely. Greenwich Conservatives are lobbying for better controls on HMOs and ecnouraging Eltham residents to respond to the Local Plan Consultation before it closes on 8th February.
Greenwich Conservatives have been campaigning hard to ensure that the Council has tougher controls on HMOs – below is a debate from the Council meeting earlier this year where the Leader of Greenwich Conservatives Cllr Matt Hartley presented a plan to improve the Council’s policies in this area.
To get a better overview of the HMO issue in Greenwich the Greenwich Wire piece on this is excellent and includes a map showing how much Plumstead has been the focus of HMOs in the past and Eltham could easily be next.
